?
小美風格完美融合了傳統美式與現代設計的精華,成就低調現代的美式生活。本期《美家記》是一套舊房改造型住宅,業主陳姐對美式風格情有獨鐘,它不僅有傳統的穩重,也融合現代的摩登時尚。下面小美要帶大家走進陳姐的五口之家,欣賞美式的獨特風情。
美家信息
樓盤:中天瑞景
戶型:三室兩廳
面積:147平米
造價:40萬
設計風格:美式
設計師:陳昌
房間在細節和整體線條中突出了小美風格的簡潔、自由,增加了空間層次感。在空間上,由于是五口之家,首先考慮到的就是收納,陳昌設計師特意添加了置頂式收納柜,同時選擇與墻面一致的顏色,擴大了空間的視覺效果,提升了房間的收納功能。
美家分析
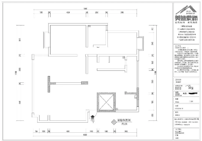
▲原始結構圖
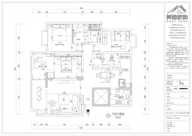
1.陳昌設計師把臥室從原本的兩個空間增加到了三個,在中間的位置打造出一個小型的衣帽間,這樣主臥位置就變成了臥室、衣帽間、衛生間;
2.次臥分一部分,結合陽臺的位置做成了一個書房;
3.主臥和次臥的位置增加了飄窗,把臥室空間又增加了不少。

▲ 平面布置圖
美家故事
陳姐在銀行工作,愛人王先生在電力設計院工作,在多年的相識、相愛到結婚,現在有了五個月的男寶寶。兩個愛的人在一起,靠的是彼此的信任和對方濃濃的愛意。得知陳姐懷寶寶的時候,王先生就想把他們兩個人的愛巢進行改造,如此的濃情,真是讓人羨慕!
美家欣賞
客廳墻面整體白色居多,沙發墻和窗簾的部分選擇藍色作為輔助色調。沙發、茶幾、電視柜都是深色實木材質,白色-藍色-原木色,三個顏色遞進,在視覺上就會顯得很融洽。
靠背也是采取深和淺的顏色互相搭配,讓整體暖色調都提升了不少。

在地板部分采用菱形鋪貼法,為空間帶來立體感。菱形的瓷磚也與吊頂的花紋相呼應,由下往上空間都拉升了不少。

電視背景墻為避免瓷磚又太過單調,所以陳昌設計師從瓷磚的紋理上面入手,選擇有著大理石紋理的瓷磚,既容易清潔,又和地板紋理相同。
電視柜實木設計顯得很沉穩,兩側綠植又為空間增加了一份活力。這樣空間更為柔和,也符合小美風格的靈動,營造出溫暖的家居體驗。
餐廳冰箱是陳姐很喜歡的部分,她說:“原來廚房很小,冰箱放在廚房會很擠,放在客廳拿東西會很不方便”,所以陳昌設計師特意在廚房門的位置,做了一個凹陷的空間放置冰箱,擺脫了冰箱不知道該放在何處的困擾,增加了方便性。
家居都選用深色實木,餐桌也不例外,為了不讓實木色和白色搭配太過單調,在兩側的收納柜中間,設計了跟客廳沙發墻一樣獨特的藍色背景墻。
主臥窗簾顏色是藍白相見的色調,加上簡約的燈飾,搭配上深藍的家居,很符合小美風的獨特韻味,床頭柜的花點綴更是恰到好處
陳姐很喜歡飄窗設計,她說:“以后不收納的時候還可以鋪上毯子,擺上茶具和書,坐在窗邊,陽光灑進來心里都感覺溫暖了許多”,陳姐是很有童心的人,得知我們要拍攝,她還把最喜歡的娃娃放在飄窗位置。
主臥在收納的地方做得很細致,采用的是置頂式衣柜,白色衣柜和墻面融為一體,擴大了收納空間。一家三口的起居都在主臥中,這里充滿了愛的味道。

為滿足王先生的辦公需求,陳昌設計師將次臥的一部分和整個陽臺空間全部改成書房,深色的書桌和深綠色椅子,彰顯貴氣。
旁邊的窗簾同樣是藍黃相間,大面積的藍中間加入一縷黃色,猶如身處海洋中的晚霞,給人無限的溫暖、希望。
業主有話說
“裝修的時候我懷著孕,先生又常年出差在外,所以裝修都是交給設計師和項目經理來做。裝修后整體感覺非常好,特別是收納設計和飄窗的部分是我最喜歡。軟裝是我和設計師一起挑選,設計師非常用心,在小細節的部分做的非常好,我很是滿意。”
設計師簡介
從業經歷:11年
擅長風格:現代簡約、 美式鄉村 、現代前衛 、新中式、 簡歐
主要榮譽:
中國建筑協會室內設計及分會會員
“貝爾杯”亞洲青年設計師原創室內設計大獎-黑馬獎
主要項目:
家裝類:
《中建梅溪湖》、《金茂梅溪湖》、《麓山別墅》、《北辰三角洲》、《珠江花城》、《萬國城》、《湘江世紀城》、《新地東方明珠》、《翡翠花園》、《長房時代城》、《深業睿城》、《湘府鑫遠華城》、《保利花園》、《華盛世紀新城》、《玫瑰園》、《翡翠花園》、《碧桂園》、《通用時代》、《中隆國際御璽》等。
公裝類:
《麓谷企業廣場辦公樓》 、《衡東商會會所》、《和順樓》等。
設計理念:
設計不是簡單的堆砌,而是內心的感悟和傳達。