?
本期《美家記》的案例作品是業主彭先生的父母為他準備的婚房,現在是彭先生和愛人一起居住。設計師程繼星為他們打造了一套美式簡約風格的三居室溫馨愛巢,整體給人一種簡約大氣的氣息,沒有繁復的空間布局,卻很抓眼。

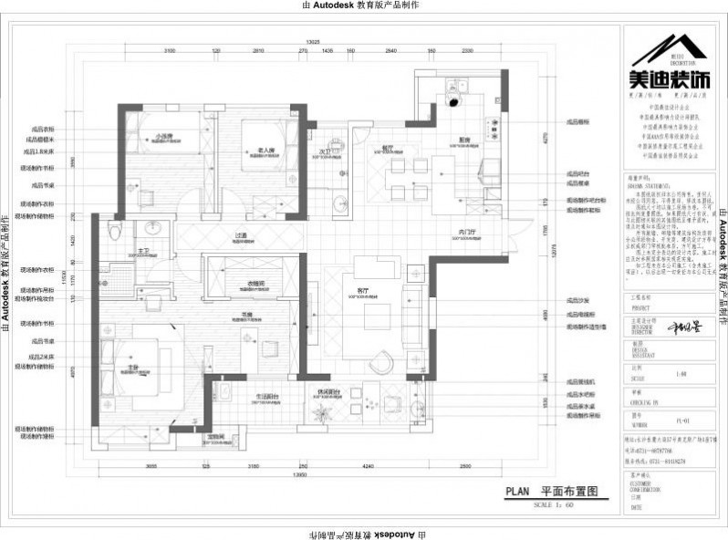
戶型特點:原本戶型是160平四居室,入戶玄關比較規整,但是客餐廳面積較小,廚房空間狹長,視覺較擁擠,臥室面積較小。

設計亮點:
1、設計師程繼星采用開放式廚房解決功能需求和提升了空間延伸感。
2、原本小四室改造為大三室,增大了臥室空間使用面積,特別改造成了臥室+書房的套間設計。
3、將墻體打通后,擴充了主臥的空間,一部分空間做為梳妝臺,另一部分做為臥室單獨的淋浴區和馬桶區域。

客廳整體是以白色為基調,暖色調多加以木色的組合。軟裝配飾上,都是業主彭先生和愛人精心挑選,并咨詢設計師程繼星結合整體效果最后確認的。
△沉穩厚重的茶幾,質地柔軟的棕色皮沙發優雅舒適,再加上橙色、藍色絲絨抱枕的點綴,給人以溫馨的感覺。
沙發背景墻簡單地用石膏板做造型,橫平豎直卻不顯得呆板。背景墻壁燈裝飾,清新中帶一絲摩登感。
△從陽臺向餐廳、廚房看去,設計師程繼星在彭先生的需求下盡可能增大客廳空間,而多元素材質的利用使空間更具多變性??蛷d的家具搭配都融合在一個色系里,形成深淺不一的層次關系,帶來視覺上的舒適和寧靜。
△設計師程繼星對客廳地板特地采用菱形鋪貼法,為空間帶來立體感。深色木質柜彰顯活躍中的沉穩,更貼近屋主彭先生的成熟穩重的個性。開放式的客廳設計不僅有利于整個空間保持寬敞明亮,也讓空間看起來更加豪華大氣。
△電視背景墻以石膏線造型內嵌電視和電視柜,這樣不僅色調和客廳整體風格相融合,還顯得美觀大氣,將這塊區域利用的淋漓盡致又不失設計感。

△餐廳和廚房的設計,是彭先生最喜歡的裝修效果。餐廳與開放式廚房相鄰,餐廳的瓷磚鋪設很有復古的異域風情,花磚巧妙的劃分了空間。深色餐桌與餐椅組合,配上精致的餐布和鮮花,整個餐廳看起來和諧也不失活潑、有情調。
廚房的設計比較特別,原本狹長窄小的空間,轉變成一個由收納柜組合造型的開放式廚房,避免了廚房擁擠的問題又提供了大量的儲物空間。

△智能家電和成品櫥柜結合成一個實用又時髦的L型廚房。吧臺的酒巢設計很方便,充足的空間可以儲存大量的酒品。
主臥經過設計師程繼星的改造,由原本的小臥室變為一個功能齊全的大主臥,對空間進行了最大化利用。主臥內具備了6大功能區:衛生間,淋浴室,飄窗休閑區,衣帽間,書房,休息區。
△飄窗的位置原本是個落地窗,設計師程繼星的改造將其打造成一個集儲物和休閑一體的功能區,雙層窗簾讓空間顯得更加愜意,無論什么時候都能在飄窗前享受自在隨意的生活。
主臥既安裝了飄窗柜,又將梳妝臺與收納柜、吊柜等結合起來,滿足多種不同的需求,而且這樣收納柜也不會顯得太呆板了。
書房是按照彭先生的想法,將其作為主臥配套的一個獨特的設計,滿足了彭先生平時工作的需求。
△質感厚實的書桌和美式座椅,深棕的色調看起來嚴肅且莊重,靜謐中散發出書卷香,書桌上復古擺鐘和裝飾品成為亮點。簡單的白色書柜,擺放了書籍和相片框,少了點華麗多了點輕松隨意。
