?

本案業主是一名金融行業精英,常年在國外生活,而本案的設計師也有在海外留學的經歷,在兩位海歸的“作用”下,空間設計將有怎樣的表現?
小編尋思著,用Yuppies來概括這個空間再恰當不過了。“Yuppies”是指西方國家年輕能干有上進心的一類人,他們受過高等教育,有較高的知識水平。國外媒體甚至新創了一個詞“Chinese Yuppies”來形容中國新一代擁有良好教育背景、收入不菲的年輕人。他們身上集中代表著一個時代的時尚、品味及格調。而該房屋的設計就是Yuppies品位與生活方式的投射。
房屋信息
▼
房子位置_ 北辰定江洋
面積_260平
裝修總花費_ 50萬
修花費總時長_三個月
入住時長_1個月
家居風格_現代混搭風
家中最愛_客廳、臥室
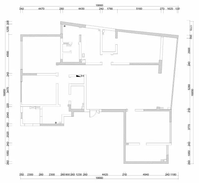
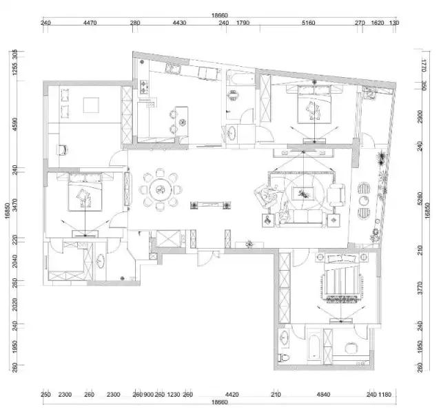
▲平面布置圖&原始結構圖
業主劉先生喜歡隨性而雅致的生活韻味,設計師完全根據業主的個性需求,在設計風格上選擇了偏冷峻的雅痞格調。但又擔心空間過于冷峻,缺少人情味,所以在配飾和家具上選用了一些明黃,橘黃的色感,使空間彰顯一些暖意。頗具國際范的后現代風格,帶了少許的混搭元素,給人特立獨行的高貴與精致。
▲客廳區域
「美迪裝飾」業主 劉先生 說
整個空間以高級灰為主色調,將現代風格的質感完全凸現出來。沙發的黃色和凳子的草綠色在顏色上的跳躍又給空間增加了活力。在溫和、穩定的氛圍中,用個性和獨特的單品帶來視覺上的驚喜,沒有張揚和夸張,只在舒適和時尚之間創造一種近乎完美、令人驚嘆的平衡。
▲客廳區域
「美迪裝飾」業主 劉先生 說
后現代風格時尚感十足,既滿足了業主對空間的個性化要求,也相當具有質感。同時又帶了少許的混搭元素,燈飾上偏重于工業質感,拋棄了掉了傳統歐式的瑣碎。
▲餐廳區域
「美迪裝飾」業主 劉先生 說
餐廳在風格上與整體和諧統一,工業風的創意復古吊燈打破了沉悶,增加了空間的趣味性。大理石臺面和金屬材質流露出奢華的氣息,低調內斂。
▲過道區域
「美迪裝飾」業主 劉先生 說
我不喜歡太復雜的東西,包括性格也是一樣。所以空間沒有過多繁復的裝飾,希望能給人清爽干凈的感覺。這幅立體的裝飾畫我覺得有創意,而且在裝飾上也提升了空間的格調。
▲廚房
「美迪裝飾」業主 劉先生 說
開放式的廚房沒有束縛感,給人簡約大方的感覺,同時也增加了整個空間的層次感和通透感,白色的餐臺和黑色簡約餐椅的搭配充滿了時尚個性。
▲茶室
「美迪裝飾」業主 劉先生 說
因為我平時喜歡喝喝茶,看看電影。所以將這個休閑區域做成了我的茶室兼影音室,木地板的材質,傳遞出一種舒適溫暖的氛圍,在這里,可以放下一整天工作的疲憊,讓身心得到放松。
▲主臥
「美迪裝飾」業主 劉先生 說
臥室將高級灰的氣質發揮得淋漓盡致,有點霸道總裁的味道,同時與木質元素搭配在一起,又散發出一種暖暖的氣息。
▲次臥
「美迪裝飾」業主 劉先生 說
床品都是選用的結構簡單倚重與舒適的材質,更去貼合人本身的舒適需求。將較為柔和的配飾元素一起呈現,既有個性的審美體驗,又有庇護身心的居住感。
更多空間細節
▼
1、美迪裝飾:對裝修效果滿意嗎?有沒有令你感到最遺憾且值得改進的地方呢?
劉先生:很滿意,在這里要特別說一下設計師龔翔老師,無論是在風格定位還是整個色彩的搭配上都非常統一和諧,所以最后的整體效果是非常好的。而且基本上實現了我個人的個性化需求,設計相當有水準。
2、美迪裝飾:在整個裝修過程中,你覺得美迪裝飾的設計師、施工人員等工作人員帶給你最大的感受是什么呢?
劉先生:“省心”應該是美迪給我的最大感受。因為工作原因,我經常不在長沙,而且比較忙。但是整個裝修過程,包括設計師、項目經理等都很專業,而且很注重細節,相當省心。
3、美迪裝飾:你在家居裝潢和家居布置中可以給其他人一些建議嗎?
劉先生:我覺得要把品質擺在首位吧,畢竟房子能真正體現一個人的生活品味。其次就是要有自己的個性,住在自己喜歡的房子里絕對會是一件相當享受的事情。
本案設計師>>
美迪裝飾五一路總店首席設計師龔翔老師
本案設計師:龔翔
畢業學院:
俄羅斯科斯特羅馬國立工業大學
獲獎記錄:
2009年中國室內設計大賽事例類佳作獎
2011年湖南室內設計大賽家居空間類優秀獎
2012年湖南室內設計大賽方案公共空間類銀獎
如果你的房子也裝好了
歡迎加入美迪[來我家]筑家體驗分享計劃
可獲驚喜禮品
撥打0731-82197782報名