?
房子裝好了,茶已泡好了,花都開好了,歡迎來我家。本期來我家來到了雙灣國際,女主人周姐是一個獨立優雅的女性,她看書、練書法,非常喜歡中國傳統文化。新家的裝修選擇了新中式風格,清雅含蓄、端莊優雅,非常符合她的氣質,絕對的屋如其人。
房屋信息
房子位置_雙灣國際
面積_220平
裝修總花費_40萬(包含家具軟裝)
裝修花費總時長_四個月
入住時長_1個月
家居風格_新中式風格
家中最愛_客廳、陽臺
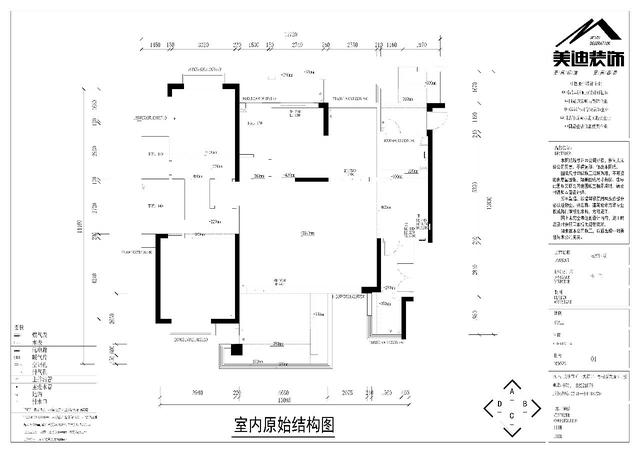
▲房屋原始結構圖
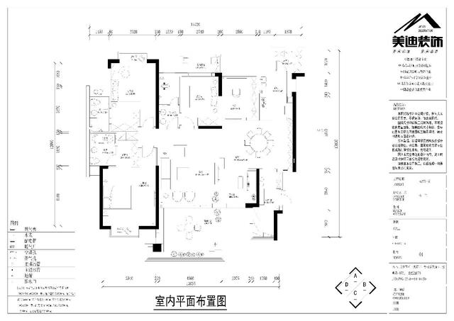
▲房屋平面布置圖
美迪裝飾業主 周姐 說
新中式風格將現代的審美需求與傳統韻味相結合,既有文化底蘊,也摒棄了傳統中式的死板。設計師通過顏色和造型的多變來詮釋新中式風格的特點,在整個用色上,通過窗簾、掛畫、插花等的亮色來給整個空間注入了新的氣息。
▲餐廳區域
美迪裝飾業主 周姐 說
餐廳將整面墻做成了收納柜,可以擺放一些藝術品或者酒類,空間很大。柜子刷成接近黑色的深色油漆,也更具現代感。

▲鋼琴房
美迪裝飾業主 周姐 說
在客廳專門設置了女兒的鋼琴室,定制了類似鳥巢形狀的鏤空隔斷,打破了中式的古板,注入了一絲現代化的時尚氣息。

▲書房
美迪裝飾業主 周姐 說
因為我平時喜歡看看書,練練書法,所以書房也是一個學習、閱讀空間。選擇木地板增加沉穩踏實的質感,窗簾的挑色又讓整個空間不顯沉悶。

▲主臥
美迪裝飾業主 周姐 說
主臥的用色也是低調優雅,窗簾、床上用品、背景墻等顏色統一和諧。陽臺設置了茶臺,平時在這里品品茶,聊聊天,也是一種身心的放松。衛生間選擇了玻璃的隔墻,增強了衣帽間的采光,整個臥室也更具空間感和通透感。
▲老人房
美迪裝飾業主 周姐 說
老人房的床品、墻紙、抱枕等顏色統一,整個空間簡單,富有傳統中式的韻味,深得老人的喜愛。
▲廚房
美迪裝飾業主 周姐 說
我希望廚房的空間足夠大,所以將陽臺拆掉改造成了廚房,而且將儲物間往里推,放大整個空間,廚房更寬敞明亮。
▲陽臺
美迪裝飾業主 周姐 說
陽臺是我非常喜歡的一個空間,平時在這里喝喝茶,聊聊天,看看窗外的美景。文化石的墻面、假山流水等元素都體現了中式風格的特色。地面選用了材質類似木地板的木紋磚,傳統和新式元素的結合,設計師在細節中將新中式風格詮釋的淋漓盡致。
1、美迪裝飾:對裝修效果滿意嗎?有沒有令你感到最遺憾且值得改進的地方呢?
周女士:挺滿意的,家里的每個空間我都挺喜歡的,是我想要的感覺。每個來我家的朋友都是贊不絕口,說我的裝修別具一格,挺開心的。
2、美迪裝飾:在整個裝修過程中,你覺得美迪裝飾的設計師、施工人員等工作人員帶給你最大的感受是什么呢?
周女士:特別負責任。裝修過程中,項目經理給我們提了很多建設性建議,我們想到的,他都想到了;我們沒想到的,他也想到了。設計師也很用心,我提出的一些功能需求,都得到了很好的實現。
3、美迪裝飾:你在家居裝潢和家居布置中可以給其他人一些建議嗎?
周女士:我覺得一定要先借鑒一下其他人的案例,找到你自己非常想要的一種感覺,然后再結合自己的功能需求和設計需要來裝修自己的新家。
特別鳴謝>>
美迪裝飾五一路總店VIP首席設計師