?
對于工作不久的女孩來說,
當開始一個人的生活,
對于空間的感受也會變得更加敏感。
房子空間不需要多么大,
只有貼心而舒適的居家機能,
以及令人放心依賴的安全感,
才是散發著溫暖、安心的單身小窩。
本期案例的主人公是一位來自益陽準備在長沙定居的年輕女孩,她選擇一個人住在70㎡的公寓。設計師陳姿為她打造了一間貼心、安全的單身公寓,通過簡化色調和材質的使用,營造出溫暖、明亮的氛圍。讓屬于年輕女孩的單身公寓,不僅有知性好品味,也散發著溫暖、自在的安心感。
About this home
關于美家
樓盤地址:綠地中央廣場
戶型面積:70平方 一室兩廳
風格定位:北歐風格
造價:9萬
設計師:陳姿
美家分析
△原始結構圖
戶型優缺:戶型比較周正,但廚房采光較差,使用面積較小,層高較低。
設計說明:
1、設計師陳姿采用開放式廚房解決功能需求和采光問題。
2、吧臺的造型給空間增加時尚元素同時點綴實心玻璃吊燈裝飾,營造空間的段落風景又增加了使用空間。
3、層高較低,所以天花吊頂設計師采用點狀光源和光溝串聯,視覺上又讓空間感無間斷地延伸。
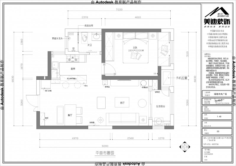
△平面布置圖
改造亮點:吧臺區域有墻,廚房窗戶小采光不好,操作臺面比較小,原始結構區域沒有餐廳區域,所以減少客廳外面的一個房間,把客餐廳的區域做大??蛷d的偏中間位置有個特別高的梁,采用了吊頂來處理空間關系。
進門玄關設計很簡單,有一塊小走廊連接著廚房與客廳,走廊角落里擺放了一個儲物柜,可以放一些出門隨手物品。儲物柜上放置了一幅現代人物油畫和生機勃勃的綠植,搭配得剛剛好,一進門就擁有好心情。
玄關旁邊就是廚房,開放式的客餐廳設計為小空間帶來更為通透靈活的視覺感受。廚房采光不好,墻面用小白磚有提亮作用。為了合理利用空間,制定了上下兩排廚柜,完全滿足日常需求。
廚房連著吧臺,溫潤的奶白色大理石吧臺搭配優雅的灰綠色的小家電,竟然營造出日式安寧的空間氛圍。
廚房對面就是小餐桌,北歐風特點就是去除復雜的裝飾,簡單大方,墻上莫蘭迪色系的日歷畫,增加了裝飾元素。為使空間能夠多些活力,小屋內擺放了不少綠植。
客廳設計是滿滿的北歐風情,綠色的電視背景墻搭配木質地板,帶來清爽又溫潤的氣息,大扇玻璃窗為室內帶來充沛的采光。豐富的綠植,也是客廳的點綴,帶給室內明艷生機的氣息。
客廳墻面使用綠色+白色,視覺上比較舒服。為了讓顏色豐富一些,沙發上擺放了幾個顏色不同的靠枕。布藝沙發,慵懶舒適,讓人有種想躺上去的沖動,沙發背景墻用了兩幅畢加索抽象油畫做裝飾,抽象的線條、繽紛的色彩很有格調。

臥室設計也比較簡約,一張舒適的單人床搭配垂下來的吊燈,顯得更有設計感。水泥灰色布藝床上四件套,棉麻的材質舒適又親膚。除了客廳中、餐廳里看見的掛畫,臥室自然也少不了,床的背景墻也掛了兩幅裝飾畫。屋主很喜歡這種簡單搭配,真是永不過時。

陽臺區域,在并不寬敞的空間內,通過定制的家具滿足功能及儲物需求,洗衣機上方空間也沒有浪費,裝個吊柜也是收納儲物的好地方。
后記
屋主是位有品位的鋼琴老師,陳姿設計師說屋主很喜歡綠色,又很符合樓盤的名字,所以整個空間以綠灰色為基調。在搭配上,淺色調的沙發、裝飾、吊燈等,再擺放上生機勃勃的綠植,看起來簡約大方,還有溫馨的感覺。軟裝都是屋主小姐姐精心挑選布置的,小編已經默默種了裝飾畫的草。
盡管女孩一個人住的戶型不大
但設計師通過簡化色調以及材質的使用
營造了全屋的空間感
簡單,自然,充滿生活的氣息
生活本來就是應該是這樣的
簡單而又充實
設計師簡介
/設計師/
陳姿
職稱:美迪高級設計師
從業時間: 6年
中國注冊室內裝飾設計師
湖南省 裝飾協會會員
長沙市 裝飾協會會員
擅長風格:美式、北歐、歐式、現代、新中式
設計理念:享受設計,創造品質生活空間
畢業學校:長沙大學
代表作品:云頂梅溪湖,萬象府臺
保利西海岸,世茂鉑翠灣
世茂外灘里,金茂梅溪湖嘉湘華庭
華潤橡樹灣,綠地中央廣場潤和之悅