?
本期裝修案例的美家屋主李杰是長沙本地人
他有一位美麗的太太
在采訪中讓我們羨慕的是
在新家婚房的打造過程中
他對妻子的狂式寵愛
現在隨小美一起走進他兩的美家
相愛5年,兩人在公司相識
愛的甜蜜、幸福融入了這個婚房
再次聯系他們,已經成為準爸爸準媽媽
美家故事
男女主人公在公司相識,是屬于一個部門的同事。“第一次見面覺得她非常的青澀,上班喜歡踩點,大大咧咧,心地善良”。男主人李杰對女主人的第一印象記憶猶新。千萬人之中,遇見彼此,沒有早一步,也沒有遲一步,只是恰好遇到,便是生命中最美的緣!
相愛五年后,兩人在長沙購置了這套135㎡的房子,用來做婚房。在大多數人眼中,旅行是考驗兩個人感情的利器,那裝修就是終極武器。因為裝修過程中的溝通能力、忍耐力以及配合度等,都考驗著雙方的感情。但對于他兩來說,根本不存在。“中途沒有矛盾,她做主,我不做聲的”,男主人的回答果斷與干練。
“我們兩個不怎么拍照”,男主人笑道。他的回答容易想起那句:愛,有時候無需直白的表達,只要彼此心里明白就好。“秀恩愛”對他們來說很遙遠,他們用自己的方式表達出雙方的愛意。
現在,讓我們一起欣賞他兩的美家,感受家背后的幸福生活。
美家信息
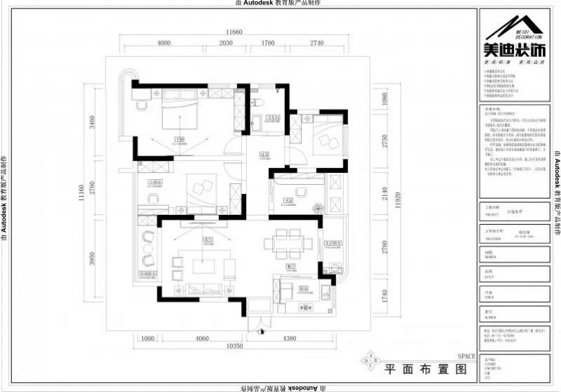
樓盤名稱:五礦萬境水岸
戶型:四房兩廳
造價:18萬
設計風格:清新北歐風
設計師:楊宏偉
設計說明
1.戶型改造上,因原始結構的方正,無需大改動。女主人強烈需要一個衣帽間,設計師楊宏偉老師將原始戶型的主衛去掉。屋主的父母基本上不會過來居住,之后新成員小孩的加入也是兩代人的生活,衛生間的減少對之后的日常生活起居影響不大,同時也能滿足衣帽間與化妝間的生活功能需求;
2. 空間設計中,考慮新生命的加入,需要留有足夠收納空間。設計師楊宏偉老師將整體空間設計以收納為主,實現儲物空間最大化;
3. 軟裝搭配以北歐主體調,化繁為簡,不加以多余修飾,回歸北歐生活的自由,打造輕松、靈動的舒適感受。
美家欣賞
整體的設計上,硬裝無需做太繁雜的造型,關鍵在于軟裝的搭配來營造北歐的溫馨雅致風情。因為男主人忙于工作,家中的軟裝基本是女主人一手操辦。柔軟的灰藍色沙發搭配深灰色地毯,亮色靠枕、木質柜體等色彩的跳躍給空間帶來更為豐富的層次感覺。
“楊老師在軟裝方面給了我們很多建設性的意見,在他的指引下,我們對后期軟裝成型后的樣子也比較滿意”
拍攝的照片,是屋主有入住半年。左側放著兩人甜蜜的結婚照,幸福肆意散發。中間木質背景墻在燈光下,獨有魅力且溫和。而右側柜體增加儲藏功能的同時,精致趣味的小擺件塑造出舒適之感。
開放式的客餐廳設計帶給空間更為通透的視覺效果。木質餐桌將經典北歐木元素延續,深色休閑椅的搭配讓就餐環境更為純粹。“少即是多”是設計師楊宏偉老師一直所想表達的設計理念。
“原來房子毛胚的時候室內結構不周正,楊老師通過把連接主客廳和客臥陽臺墻面處理后,空間打開很多,采光范圍也大了。這點是我最喜歡的”
墻面簡單利落,白凈的墻面搭配木質地板,帶來清爽又溫潤的氣息。書房以靈動空間處理,放棄使用定制衣柜等固定家具進行擺放,為以后男主人再之后的生活中可以加入自己的想法。
家,是一個附有深刻意義的詞
二人共同度過的每個溫馨時刻
都會被記錄在這個幸福的新家中
迎接著只屬于他兩的故事
設計師簡介

《美家記》欄目是通過分享美家背后的真實故事和裝修案例效果圖,為你提供設計靈感,一起感受生活的各種美好。下周日,與你不見不散~
(本期編輯:吳歡)