?
本期《美家記》,小美要向大家展示一套頗有煙火氣的別墅裝修案例。房屋主人是一對80后夫婦,平時工作雖忙,但也是懂得享受生活的人,對房子裝修質量方面很是看重。他們抽空了解過幾家專做別墅的公司,結果都不太滿意。通過鄰里的口碑推薦,夫婦二人來到美迪,與設計師進行初步設計方案溝通后,最后選擇了美迪。
房 屋 信 息
樓盤地址:龍湖湘風原著聯排別墅
面積: 260平
裝修風格:小美風格
整裝造價:75萬(不含家具家電)
設計師:楊宇
設計理念:本套作品以溫馨的淺色為基礎,以少量的亮色和深色來搭配,柔美又不失大氣。在擴大空間視覺感受的同時,打破呆板,也使室內更加明亮。用優雅大方的乳白色清新打底,木色的自然,以及一些亮色的點綴。室內擺放著各式創意家具和飾品,一盞燈飾,一塊地毯,一個擺件,一束花草,都是唯一。
由于夫婦二人平時工作較忙,沒有太多時間和設計師溝通,基本全權交由設計師負責。女主人對家的期望值很高,所以楊宇老師在設計的過程中,充分考慮到了美觀性和實用性的平衡。根據男女主人的生活習慣和喜好,量身打造了家里的每一個角落。
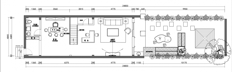
負一層平面布置圖

負一層是休閑娛樂區,是楊宇設計師為業主量身定做而成,配有茶室、吧臺和影視房。生活可以快節奏,但絕不能失去情調。該區域不僅可以讓房屋主人減輕生活壓力,而且是家人們增進感情的好去處。喝茶、看書、追劇、世界杯,真是好不愜意。
▲ 會客廳
淺色背景墻配上卡其色沙發,各式各樣的家居配件,壁畫、綠植、抱枕、臺燈,體現出主人追求細節完美的生活態度。

一層平面布置圖
一層是生活區,從進門的花園,到餐廚區域再到客廳,每一個區域的設置和細節擺放都頗有用心。
▲ 客廳
白色背景墻搭配深色沙發,是深與淺的碰撞,也是柔與剛的較量。再用壁畫、綠植和亮色抱枕加以點綴。正如男女主人截然不同的性格,深沉中夾帶著清新,柔和中又彰顯沉穩大氣。
▲ 細節圖
乳白色的壁爐配上原木色背景墻,以美式風格掛飾作為點綴,再搭配擺件和花草,給人留下簡單精致的印象。
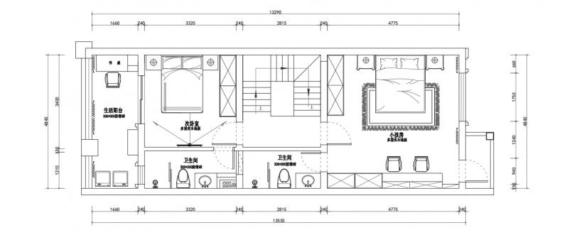
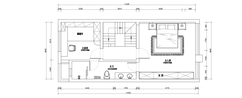
二、三層平面布置圖
▼ 二層平面布置圖
▼ 三層平面布置圖
二、三層為休息區;夫婦二人有二胎計劃,為滿足以后的生活需求,設計師將二層劃分為兩個房間,為二胎寶寶做好充分準備。三層分為主臥和小孩房,雖間隔不小,但門門想通,方便主人照顧小孩。
▲ 臥室
房間整體是以乳白色為主色調,再加上一些淺色系元素進行搭配,呈現出一種溫馨的氛圍。墻面衣柜和嵌入式電視機的設計,瞬間提高了臥室的氣質,同時增大了收納空間,真是顏值收納兩不誤!
后 記
裝修完后夫婦二人非常滿意,親戚朋友對此也贊不絕口。每當有新客戶前去參觀時,他們也很熱心地介紹和推薦。生活不缺少美,只是缺少發現美的眼睛。只要用心設計,細心布置,家也是一種美的展現。
設 計 師 介 紹
楊宇 vip首席設計師
從業經驗:12年
擅長風格:歐式古典、美式鄉村、現代前衛、其他
獲獎情況:獲得中國設計大賽銀獎及銅獎,及亞太設計大獎。
設計理念:用創意型的實用主義設計,為客戶創造理想的生活空間。
(本期編輯:sunny)